€1,230,000
Finance my project
- 6 bd(s)
- 2 ba(s)
- 260 m2
- House
- Old
-
1
- 0
-
0
Description
Available in
- English
- Español
- Français
- Italiano
Powered by
Description du bien
See the very helpful immersive video linked below.
2 NEW ARCHITECT-DESIGNED SEMI-DETACHED HOUSES, IN SEMI-WARE CONDITION (unfinished).
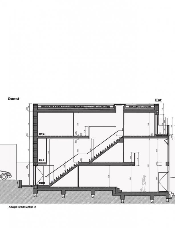
Ideally located in the Plateau district of Fontenay-sous-Bois, these two 130 m² semi-detached townhouses, arranged on three levels, benefit from a dual east/west exposure, unobstructed views of the Fontenay hills, a balcony, and a green roof terrace. Inspired by Le Corbusier's Radiant City, these modern and functional light-brick houses, with two parking spaces included, are completely independent and ideal for a chosen living arrangement.
Designed as comfortable and economical homes, the emphasis has been placed on spaciousness and natural light to offer a high quality of life for a family (or two families). The double-height living room is exceptionally bright thanks to its generous size and large 5.50m high bay window opening onto the garden.
A straight staircase allows for seamless movement between the levels.
Sold as a semi-raw concrete shell, with a ten-year structural warranty (builder and architect) and builder's risk insurance, including:
- large, brand-new, high-quality sliding glass doors with high-performance double glazing,
- electric roller shutters,
- reversible heat pump (air conditioner) with hot water tank, underfloor heating on the ground floor, and water radiators on the upper floors,
- electric gate for the parking area,
- complete renovation of the dividing wall with the neighbor's property. To finish each house, budget between €60,000 and €90,000 for renovations (electricity, plumbing, kitchen, bathroom, room layout, flooring, ceilings, and walls, using materials according to your preferences).
You can create your own custom project.
This open-plan layout allows for numerous design possibilities to suit individual needs and budgets.
Plot size: 170 m² x 2
House: 130 m² triplex x 2
Green roof: 49 m² x 2, with 20 cm of thermal insulation
Private courtyard: 25 m² with one parking space x 2
Private garden: 70 m² x 2
Vehicle access: Automatic gate x 2
Pedestrian access: Door with intercom x 2
Air/water heat pump for underfloor heating and domestic hot water, air conditioning in summer, water and electricity supply + separate connection to the wastewater and rainwater networks.
Energy consumption:
Compliant with the RT 2012 thermal regulations, this is a very energy-efficient house thanks to high-performance insulation (R=5.14) and the air/water heat pump. Energy Performance Certificate (EPC) obtained after completion of works = A (Consumption per house per year < 50 kWh/m²).
Doors and windows INCLUDED:
Cortizo double-glazed aluminum frames meeting the latest thermal standards + electric roller shutters.
Energy class A, Climate class A. Estimated average annual energy costs for standard use, based on 2023 energy prices: between €3,000 and €4,000. Information on the risks to which this property is exposed is available on the Géorisques website: georisques.gouv.fr.
Your Loft App'Art & Co advisor: Founder - Vietnam HOANG
Professional Card No. CPI75012021000000813
Professional Liability Insurance No. 500643218
2 NEW ARCHITECT-DESIGNED SEMI-DETACHED HOUSES, IN SEMI-WARE CONDITION (unfinished).
Ideally located in the Plateau district of Fontenay-sous-Bois, these two 130 m² semi-detached townhouses, arranged on three levels, benefit from a dual east/west exposure, unobstructed views of the Fontenay hills, a balcony, and a green roof terrace. Inspired by Le Corbusier's Radiant City, these modern and functional light-brick houses, with two parking spaces included, are completely independent and ideal for a chosen living arrangement.
Designed as comfortable and economical homes, the emphasis has been placed on spaciousness and natural light to offer a high quality of life for a family (or two families). The double-height living room is exceptionally bright thanks to its generous size and large 5.50m high bay window opening onto the garden.
A straight staircase allows for seamless movement between the levels.
Sold as a semi-raw concrete shell, with a ten-year structural warranty (builder and architect) and builder's risk insurance, including:
- large, brand-new, high-quality sliding glass doors with high-performance double glazing,
- electric roller shutters,
- reversible heat pump (air conditioner) with hot water tank, underfloor heating on the ground floor, and water radiators on the upper floors,
- electric gate for the parking area,
- complete renovation of the dividing wall with the neighbor's property. To finish each house, budget between €60,000 and €90,000 for renovations (electricity, plumbing, kitchen, bathroom, room layout, flooring, ceilings, and walls, using materials according to your preferences).
You can create your own custom project.
This open-plan layout allows for numerous design possibilities to suit individual needs and budgets.
Plot size: 170 m² x 2
House: 130 m² triplex x 2
Green roof: 49 m² x 2, with 20 cm of thermal insulation
Private courtyard: 25 m² with one parking space x 2
Private garden: 70 m² x 2
Vehicle access: Automatic gate x 2
Pedestrian access: Door with intercom x 2
Air/water heat pump for underfloor heating and domestic hot water, air conditioning in summer, water and electricity supply + separate connection to the wastewater and rainwater networks.
Energy consumption:
Compliant with the RT 2012 thermal regulations, this is a very energy-efficient house thanks to high-performance insulation (R=5.14) and the air/water heat pump. Energy Performance Certificate (EPC) obtained after completion of works = A (Consumption per house per year < 50 kWh/m²).
Doors and windows INCLUDED:
Cortizo double-glazed aluminum frames meeting the latest thermal standards + electric roller shutters.
Energy class A, Climate class A. Estimated average annual energy costs for standard use, based on 2023 energy prices: between €3,000 and €4,000. Information on the risks to which this property is exposed is available on the Géorisques website: georisques.gouv.fr.
Your Loft App'Art & Co advisor: Founder - Vietnam HOANG
Professional Card No. CPI75012021000000813
Professional Liability Insurance No. 500643218
Ref: 154315
Characteristics
General
Surface
260 m²
Surface terrain
340 m²
Pièce(s)
8
Chambre(s)
6
Salle(s) de bain
2
Salle(s) d'eau
2
Nombre d'étages
2
Année de construction
2025
Kitchen
Cuisine
Open
Amenities
Commodités
Balcony
Parking
Terrace
Energy balance
Energy Performance Diagnostic
A
DPE
DPE réalisé après le 1er juillet 2021
Montant estimé des dépenses annuelles d'énergie pour un usage standard (€)
4000
Année de référence des prix de l'énergie utilisés pour établir cette estimation
2023
Devenir propriétaire, c’est super ! Mais si c’est pour manger des pâtes et ne plus partir en vacances pendant 10 ans...🥺
Body
DoorInsider Courtage accède en temps réel aux taux de plus de 80 banques partenaires et recherche le meilleur taux. Recevez une attestation de financement en - de 24h ! Nous la réactualisons tous les 2 mois.
Image