1 550 000 €
Financez ce projet
- 3 chbre(s)
- 1 sdb(s)
- 123 m2
- Appartement
- Ancien
-
2
- 0
-
0
Description
Disponible en
- English
- Español
- Français
- Italiano
Powered by

Description du bien
A VOIR LA VIDEO IMMERSIVE TRES UTILE, EN LIEN.
A 2 pas de la rue Montorgueil, dans une rue très calme.
Plongez dans l'atmosphère chaleureuse et accueillante de ce loft, de type maison individuelle, entièrement meublé (prêt à l'emploi), niché au coeur d'un immeuble de caractère datant du 19ème.
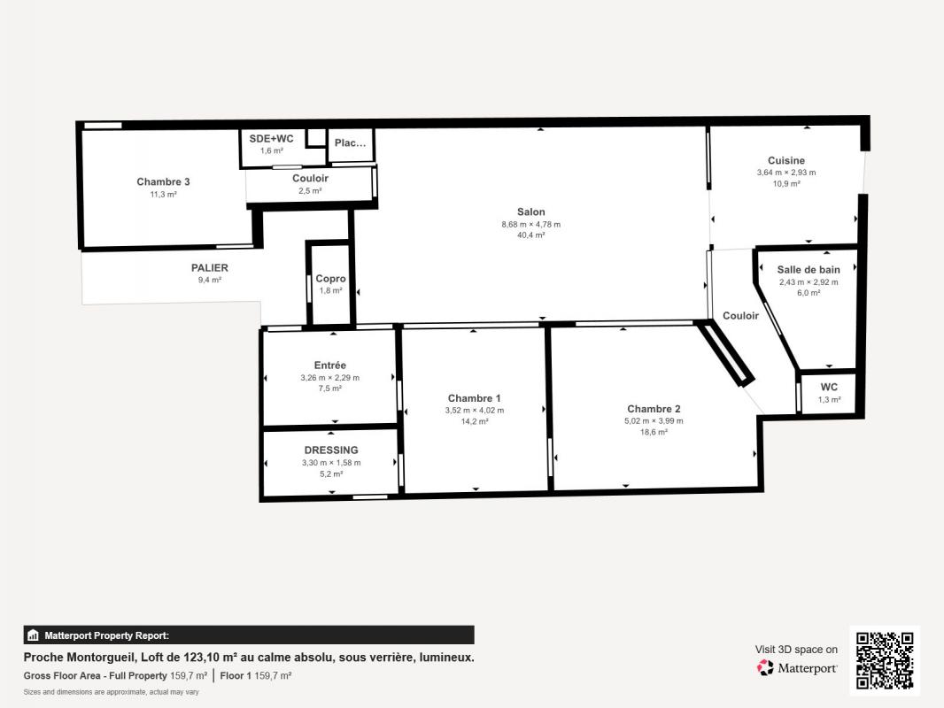
Avec ses 124 m² de surface habitable, ce loft sous verrière en double vitrage, avec stores électriques, et allant jusqu'à 4 m. de haut, jouit d'un calme absolu et d'une luminosité sans pareille, alliant élégance et fonctionnalité, tout en offrant un cadre de vie idéal pour les familles ou les professionnels en quête d'un espace spacieux et lumineux.
Au premier étage d'un immeuble de 5 étages, cet appartement vous séduit dès l'entrée avec son superbe volume, et les fenêtres intérieures originales de ses chambres, donnant sur le bel espace de vie de 39 m². La cuisine indépendante, aménagée et équipée, est ouverte sur le salon, rendant ce lieu de vie très convivial.
Les trois chambres spacieuses (de 12, 15 et 18 m²), la clim, et la salle de bains moderne offrent un confort optimal, en toute saison, avec un grand dressing et plusieurs placards, tandis que les deux WC indépendants garantissent une intimité préservée.
La 3ème chambre a sa propre entrée sur le palier, et peut ainsi aisément devenir un studio indépendant, facilement louable dans ce quartier recherché.
À proximité immédiate de la rue Montorgueil, vous êtes au coeur d'un quartier très commerçant, idéalement situé au centre de Paris, avec plusieurs commodités pratiques : trois crèches, maternelles et écoles élémentaires, ainsi que deux collèges à seulement 10 minutes à pied.
Pour vos courses quotidiennes, deux supermarchés et plusieurs restaurants sont accessibles en quelques minutes à pied. Les amateurs de nature apprécieront les trois parcs et jardins situés à 10 minutes à pied. Les transports en commun sont également bien desservis, avec trois stations de métro et quatre lignes de bus à 5 minutes à pied.
Loft et quartier enchanteurs, à découvrir sans plus tarder.
Honoraires à la charge du vendeur. Dans une copropriété de 20 lots. Aucune procédure n'est en cours. Classe énergie E, Classe climat B Montant estimé des dépenses annuelles d'énergie pour un usage standard : entre 2810.00 € et 3850.00 € sur les années 2021, 2022 et 2023 (abonnements compris). Les informations sur les risques auxquels ce bien est exposé sont disponibles sur le site Géorisques : georisques.gouv.fr.
Votre conseiller Loft App'Art & Co : Fondateur - Viet Nam HOANG
Carte T CPI75012021000000813
RCP 500643218
A 2 pas de la rue Montorgueil, dans une rue très calme.
Plongez dans l'atmosphère chaleureuse et accueillante de ce loft, de type maison individuelle, entièrement meublé (prêt à l'emploi), niché au coeur d'un immeuble de caractère datant du 19ème.
Avec ses 124 m² de surface habitable, ce loft sous verrière en double vitrage, avec stores électriques, et allant jusqu'à 4 m. de haut, jouit d'un calme absolu et d'une luminosité sans pareille, alliant élégance et fonctionnalité, tout en offrant un cadre de vie idéal pour les familles ou les professionnels en quête d'un espace spacieux et lumineux.
Au premier étage d'un immeuble de 5 étages, cet appartement vous séduit dès l'entrée avec son superbe volume, et les fenêtres intérieures originales de ses chambres, donnant sur le bel espace de vie de 39 m². La cuisine indépendante, aménagée et équipée, est ouverte sur le salon, rendant ce lieu de vie très convivial.
Les trois chambres spacieuses (de 12, 15 et 18 m²), la clim, et la salle de bains moderne offrent un confort optimal, en toute saison, avec un grand dressing et plusieurs placards, tandis que les deux WC indépendants garantissent une intimité préservée.
La 3ème chambre a sa propre entrée sur le palier, et peut ainsi aisément devenir un studio indépendant, facilement louable dans ce quartier recherché.
À proximité immédiate de la rue Montorgueil, vous êtes au coeur d'un quartier très commerçant, idéalement situé au centre de Paris, avec plusieurs commodités pratiques : trois crèches, maternelles et écoles élémentaires, ainsi que deux collèges à seulement 10 minutes à pied.
Pour vos courses quotidiennes, deux supermarchés et plusieurs restaurants sont accessibles en quelques minutes à pied. Les amateurs de nature apprécieront les trois parcs et jardins situés à 10 minutes à pied. Les transports en commun sont également bien desservis, avec trois stations de métro et quatre lignes de bus à 5 minutes à pied.
Loft et quartier enchanteurs, à découvrir sans plus tarder.
Honoraires à la charge du vendeur. Dans une copropriété de 20 lots. Aucune procédure n'est en cours. Classe énergie E, Classe climat B Montant estimé des dépenses annuelles d'énergie pour un usage standard : entre 2810.00 € et 3850.00 € sur les années 2021, 2022 et 2023 (abonnements compris). Les informations sur les risques auxquels ce bien est exposé sont disponibles sur le site Géorisques : georisques.gouv.fr.
Votre conseiller Loft App'Art & Co : Fondateur - Viet Nam HOANG
Carte T CPI75012021000000813
RCP 500643218
Ref: 154178
Caractéristiques
Géneral
Surface
123 m²
Pièce(s)
4
Chambre(s)
3
Salle(s) de bain
1
Salle(s) d'eau
1
Etage du bien
1
Nombre d'étages
4
Année de construction
1900
Nombre de lots
20
Cuisine
Cuisine
Indépendante
Chauffage
Chauffage
Electrique
Exposition
Exposition
Ouest
Bilan énergétique
Diagnostic de Performance Energétique
E
Indice d'émission de gaz à effet de serre (GES)
B
DPE
DPE réalisé après le 1er juillet 2021
Montant estimé des dépenses annuelles d'énergie pour un usage standard (€)
3850
Année de référence des prix de l'énergie utilisés pour établir cette estimation
2021
Devenir propriétaire, c’est super ! Mais si c’est pour manger des pâtes et ne plus partir en vacances pendant 10 ans...🥺
Body
DoorInsider Courtage accède en temps réel aux taux de plus de 80 banques partenaires et recherche le meilleur taux. Recevez une attestation de financement en - de 24h ! Nous la réactualisons tous les 2 mois.
Image
