330 000 €
Financez ce projet
- 1 chbre(s)
- 27 m2
- Appartement
- Ancien
-
5
- 0
-
0
Description
Disponible en
- English
- Español
- Français
- Italiano
Powered by
Description du bien
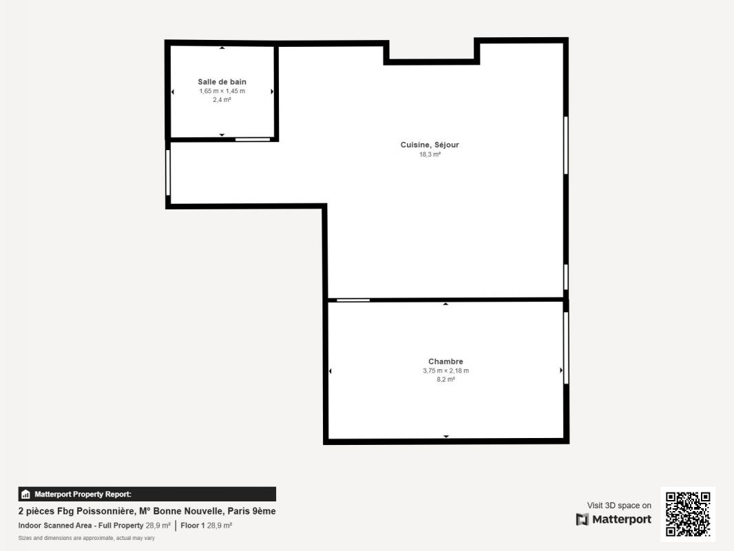
2 pièces au calme absolu d'une ravissante cour, nichée au coeur de Paris, rue du Fbg Poissonnière, à 100 m. du M° Bonne Nouvelle et du Grand Rex.
Ce bien de 28.9m² au sol (27,11 loi carrez), situé au 2e étage d'un très bel immeuble ancien, se compose d'une belle pièce de vie avec cuisine ouverte de 18,34 m² (17,37 m² carrez), d'une chambre de 7,7 m² (8,17 m² carrez) et d'une salle d'eau avec toilettes.
Donnant sur la grande cour intérieure, loin de l'agitation urbaine, ce 2 pièces a également un très bon plan, sans perte d'espace.
Quartier animé, commerçant et bien desservi.
Cinémas (Grand Rex, Max Linder), nombreux théâtres, bars et restaurants, petits commerces sont à proximité immédiate.
À seulement 3 minutes à pied, vous trouverez le métro Bonne-Nouvelle (lignes 8 et 9), et les bus 20, 32, 39
Honoraires à la charge du vendeur. Dans une copropriété de 24 lots. Quote-part moyenne du budget prévisionnel 840 €/an. Aucune procédure n'est en cours. DPE en cours. Les informations sur les risques auxquels ce bien est exposé sont disponibles sur le site Géorisques : georisques.gouv.fr.
Votre conseiller Loft App'Art & Co : Catherine Mathey
Agent commercial (Entreprise individuelle)
RSAC 830 970 315
Ce bien de 28.9m² au sol (27,11 loi carrez), situé au 2e étage d'un très bel immeuble ancien, se compose d'une belle pièce de vie avec cuisine ouverte de 18,34 m² (17,37 m² carrez), d'une chambre de 7,7 m² (8,17 m² carrez) et d'une salle d'eau avec toilettes.
Donnant sur la grande cour intérieure, loin de l'agitation urbaine, ce 2 pièces a également un très bon plan, sans perte d'espace.
Quartier animé, commerçant et bien desservi.
Cinémas (Grand Rex, Max Linder), nombreux théâtres, bars et restaurants, petits commerces sont à proximité immédiate.
À seulement 3 minutes à pied, vous trouverez le métro Bonne-Nouvelle (lignes 8 et 9), et les bus 20, 32, 39
Honoraires à la charge du vendeur. Dans une copropriété de 24 lots. Quote-part moyenne du budget prévisionnel 840 €/an. Aucune procédure n'est en cours. DPE en cours. Les informations sur les risques auxquels ce bien est exposé sont disponibles sur le site Géorisques : georisques.gouv.fr.
Votre conseiller Loft App'Art & Co : Catherine Mathey
Agent commercial (Entreprise individuelle)
RSAC 830 970 315
Ref: 154367
Caractéristiques
Géneral
Surface
27,11 m²
Surface séjour
18 m²
Pièce(s)
2
Chambre(s)
1
Salle(s) d'eau
1
Etage du bien
2
Nombre d'étages
3
Nombre de lots
24
Charges
Charges annuelles (copropriété): 840 €
Cuisine
Cuisine
Américaine
Exposition
Exposition
Est
Bilan énergétique
DPE
DPE réalisé après le 1er juillet 2021
Devenir propriétaire, c’est super ! Mais si c’est pour manger des pâtes et ne plus partir en vacances pendant 10 ans...🥺
Body
DoorInsider Courtage accède en temps réel aux taux de plus de 80 banques partenaires et recherche le meilleur taux. Recevez une attestation de financement en - de 24h ! Nous la réactualisons tous les 2 mois.
Image